Research Article
Volume-4 Issue-1, 2024
Use and Function Reallocation of Living Space in the “Design for All” Approach. The Contribution of Ecosystem Services at the Urban Scale
Received Date: November 20, 2024
Accepted Date: December 20, 2024
Published Date: December 23, 2024
Journal Information
Abstract
Nowadays, urban landscapes are constantly evolving, influenced by diverse human needs and contexts, demanding innovative and efficient plan solutions. Non optimal space planning causes a substantial reduction of urban living quality of life, inclusion and mobility problems, relational complexity, low space resources access and use connected with eco-system services network break. “Design for all” approach represents an interesting plan tool able to match people connections’ needs to urban environmental quality improvement aims. This clue is supported by the experience of the first case study that considers universal design’s planning positive effects for resident people in the Italian city of Trieste. This is specially related to efficient and effective urban public space perception and services’ use for aged and disabled people. This operative approach also can be used to check out and assess the ecosystem services network part role. At the same way, the varying, and mixed structure of the city of Trieste becomes the necessary elements for re-think and plan the urban way of living with new functions using open space work tool, as highlighted in the second case study described in the paper.
Key words
Keywords: Sustainability, Ecosystem Services, Urban Space, Quality of Life
![]() |
| Figure 1: Ecosystem services and human well-being connections |
| Source: Millennium Ecosystem Assessment: [16]. |
![]() |
| Figure 2: The ITIS Solidarity Housing in Trieste. |
| Source: Original graphic elaboration by Zanin C., 2019. |
![]() |
| Figure 3: The ITIS solidarity housing: blueprint of the floor layout. |
| Source: Original graphic elaboration by Zanin C. and Ortis M., 2019. |
![]() |
| Figure 4: The ITIS solidarity housing: organization of the kitchen space and common areas. |
| Source: Original graphic elaboration by Zanin C. and Ortis M., 2019. |
![]() |
| Source: Original graphic elaboration by Zanin C. and Ortis M., 2019. |
![]() |
| Figure 6: “Collage City interpretation”: public spaces and other settlement systems in the historic center of Trieste. |
| Source: Original graphic elaboration by [20]. |
![]() |
| Figure 7a: Urban Scenes plan of the Historic Centre of Trieste. |
| Source: Original graphic elaboration by [20]. |
![]() |
| Figure 7b: Urban Scenes photos of the Historic Centre of Trieste. |
| Source: Preliminary document for the drafting of the Detailed Plan of the Historic Centre of Trieste, 1999. |
![]() |
| Figure 8 “Collage City interpretation”: mobility net, public spaces and urban scenes in the historic center of Trieste. |
| Source: Original graphic elaboration by Venudo A. and D'Oria M., 2017. |
![]() |
| Figure 9: “Urban texture”: diagrammatic model of urban textures, networks in the urban-environment and of the ecology of function and of perception of the urban-habitat elaborated on the basis of urban scenes in the historic center of Trieste. |
| Source: Original graphic elaboration by Venudo A. and D'Oria M., 2017. |
![]() |
| Figure 10: Figure of new relationships. Tran scalar diagram and strategic urban role in the historic center of the city of Trieste |
| Source: Original graphic elaboration by Venudo A. and G. Favi, M. Spangher, D. Divkovic., 2019. |
Introduction
In its constant and rapid evolution, the urban environment can often seemingly forget the role and importance of the many constituent parts that contribute to the construction, perception and access to the wider context of activities and relationships, multiplicity and diversity of characters, resources and ways of using the space that form and transform it over time.
Increasingly, the emphasis on the quantitative value of the urban space is coming into conflict with the demand for restoring and centring on elements of value linked to residents’ quality of life.
This condition generates inefficiency in the anthropic maximization of the space and recognition of context; limits interstitial mobility; restricts access to domestic and urban spaces; complicates flow management; reduces socialization practices and individual and collective participation in local territory oversight and expedites urban decay and environmental degradation. These results in a profound disconnect within urban spaces at various levels of analysis and implementation.
Based on these problems, it becomes more important than ever to reconnect the threads of the urban texture (Figure 9), which have a typically physical connotation in the form of interventions in reclaiming elements of identity and defining roles in the characteristics of the urban spaces and those who use them.
The discussion regarding the re-organization of the urban landscape takes place at the intersection of architecture and movement, a system that generates dynamic and values-driven relationships between diverse spaces in constant pursuit of temporal meaning and definition. It is an active mode of perception, understanding and familiarity with the context of the space within the city. In this sense, movement within and around the city becomes more than a mere necessity, rather an opportunity.
As it is, urban space is a connective work tool, a resulting space that arises from otherwise hollow edifices. Yet, at the same time, it is a space that requires care and deliberation, quality in planning, execution and function. And this is a vital space for all, one that facilitates a connection between different places in the city as part of that daily routine, among those who have the means to go outside one’s home (a place of affection and intimacy) and actively pursue socialization and interaction (at school, work, public offices, tourist accommodation and entertainment, houses of worship etc.).
People experience urban spaces in different ways and at different times, and often with a sense of discontent. This should ideally be met in a spirit of positive critique, rather than one of tired resignation and adjustment.
On this subject – the return of the urban framework to the politics of domesticity – in 2007 the WHO published its “Global Age-friendly Cities” guide [21]. In the Italian edition of the report, it states in the introduction that “the real problem consists in asking ourselves which characteristics an urban environment should adopt to ensure older people are able to retain their economic freedom, their authority and the respect of those around them, autonomy, dignity and the social connections necessary for their well-being as well as for their ability to participate in the creation of individual and collective wealth and well-being.” Further, in chapter two, the WHO guide states: “An age-friendly city encourages active ageing by optimizing opportunities for health, participation and security in order to enhance quality of life as people age. In practical terms, an age-friendly city adapts its structures and services to be accessible to and inclusive of older people with varying needs and capabilities.”
Even beyond a shallow recognition of their unquestionable ontic value, older people are an invaluable resource for the city and society, if for no other reason than they necessitate reimagining how the city is planned and encourage processes that lead us out of the cultural and planning impasse caused by a crisis that is more post-modern than economic in nature. Older people are able to facilitate, or hinder, a broader reflection on residential arrangements and their implications on the urban texture (Figure 9), and an undeniable opportunity for renewal; in this context, we are not suggesting lingering over abstract observations regarding the value of older generations, but rather examining their role within our society and the potential for urban regeneration in their quest for residential solutions and services that enable people to age actively within the broader context of their lives.
The fragmentation of the urban structure can be repaired through accessibility planning that brings together the diverse usage needs in the service of enhancing the quality of the urban environment, presenting us with plan solutions able to introduce and enhance positive environmental externalities. Using these, we can reduce, manage and track impacts, reconnect pathways of mobility and ensure the presence of diverse parties within the space, creating new possibilities of sustainable urban regeneration and engagement with accessible, shared, durable and resilient spaces.
Accessibility is here proposed as a catalyst for developing and boosting its environment, an approach that conceives of accessibility of space and the built environment as knowledge, channeled towards planning spaces of domicile and of the sense of place as a laboratory of creative solutions of form, action, connection and value.
It is accessibility as a paradigm shift in thought and action, as a planning device, and it requires time, sensitivity and thoughtful planning capability to identify the aspects and elements that epitomize a quality space and make it a space that is recognizable and appropriately accessible on different levels, successfully avoiding forms of discrimination and marginalization.
At the same time, this operative approach can be used to check out and assess the ecosystem services network part role, as a relevant element of widespread and sustainable urban system quality of life enhancing [1].
In this sense, this paper seeks to substantiate the active role of accessibility as a prerequisite for planning that facilitates the improvement of the concept of place itself, in terms of familiarity, perception, analysis and choice of intervention within the built environment by presenting two case studies on a micro-urban scale, that consider universal design’s planning positive effects for resident people in the Italian city of Trieste, specially related to efficient and effective urban public space perception and services’ use for aged and disabled people and public space use as a plan tool able to connect urban texture (Figure 9) of the city in a functional way.
The first case study acts for a housing solution search within the urban context, one that sparked the regeneration of a neighborhood that was otherwise most likely destined to become an urban wasteland, a space potentially under-utilized in terms of its activation of inclusive networks and human connections to serve as drivers of renewal and resilience in the city.
With no doubt, it represents an emblematic situation in the universal design’s planning scenario at an urban scale in Italy as it completely integrates equipped accommodation need with neighborhood services requests capable of supporting and enhancing person with disabilities’ action space integration.
The second case study analyses the different urban settlement texture (Figure 9-10) and its structural evolution during the time. It comes out an image of the city that builds up her framework using public open space tool and considering urban environment role and value from a functional and qualitative point of view and considers the perceptual and psychophysical role [2] in defining the well-being of urban life determined by the structure of the city itself (one of the main ecosystem services of anthropic habitats), particularly in relation to a configuration for "urban interiors," thus for parts of the city defined through "urban scenes” (Figure 8-9).
What we present is a case study developed empirically on Trieste, employing innovative tools. It is an experiment concerning the reading and interpretation of the city and how the city's morphology (defined through "urban scenes") affects personal well-being. Therefore, the outcomes are entirely experimental and subject to falsification. How is the urban scene constructed by architecture? When does architecture define the city's scene? What effect does a theatre-city, a city designed for sequences of “urban scenes” (Figure 10), have on human mobility and orientation modes of people (and in particular on the fragile categories). These themes implicitly draw from studies on networks in the environment (Figure 8) and on the ecology of function and perception [3]. It's an approach that allows us to bring together the 4 pillars of any historical urban system resulting (Figure 10) from an articulated and complex stratification over time, just like the one in our case study, which are: 1. the built heritage; 2. mobility and public space; 3. landscape and environment; 4. the city and its reference territory (broad scale).
Theoretical background: ecosystem services and “universal design” role in urban space plan
Accessibility is proposed as a key attribute in identifying and laying the ground-work for a quality space, unlocking morpho-functional efficiency and efficacy that grants full and immediate access.
In order to make the urban space more accessible, it is necessary to study a full package of solutions and precautions during the planning phase. These would be able to guarantee structure in the distribution of elements throughout the space and the presence of elements that exemplify a strong sense of “environmental communicative-ness”. A structured and organized environment facilitates comprehension and access, making it easier to gather sensory stimuli and create a cognitive map. In doing so, the planning for a high-quality space necessitates the inclusion of elements that encourage interactions between the individual and their environment. At the same time, the use of an urban space structured in this way lends itself to being introduced among the catalysts of ecosystem services that contribute to enhancing human well-being in health, access and use of information, resources, cultural and interpersonal values.
Ecosystem services are therefore of great importance: they directly or indirectly influence and sustain the life and well-being of individuals in terms of their health, ac-cess to basic resources, energy, sustenance, the production of cultural values and more besides, based on a network of complex relationships and mechanisms that regulate the same ecosystem within which the individual is acting. In other words, ecosystem services are natural capital’s contribution to advancing the individual well-being obtained from the productive intersection of human, social and economic capital. This is possible as this economic production takes place within a social sphere that is rooted in turn in an all-encompassing nature [4].
The ecosystems are able to provide us with benefits of increased value, the so-called ecosystem benefits defined in the 2005 Millennium Ecosystem Assessment as “the benefits people obtain from ecosystems” [18]. The role of the ecosystems has long been undervalued and sidelined, despite well-being and life it depending on it. It is thanks to procurement that we receive food and raw materials; through regulation we safeguard the health of our environment, moderate the climate, regulate water, pollination, protect ourselves from hydrological collapse, etc.; culture provides us with recreational, aesthetic and spiritual services. The link between ecosystem services and well-being is depicted in Figure 1.
To fully appreciate the contribution of the idea of ecosystem services to urban planning, it is incumbent upon us to consider the individual with a disability not as an absolute, a singularity, but rather as part of a dynamic relationship with the environment and the space, an element within it that completes the structure and multiplies its potential roles.
Accessibility is seen in the context of a feature of the relationship between the different components of the constructed space and the characteristics of the individual, as a new model of identity for the space and its roles. Social inclusion becomes a kit that combines the creation of a social infrastructure with urban regeneration in a new blend of sustainable and interactive mobility [5].
The path becomes a codex with which to interpret the context and finalize the planning exercise in such a way as to maximize the efficiency of its role and of the result through simplified access to the space on the urban scale in terms of neighborhood micro-mobility (Figure 8): connections and routes within the neighborhood; possible access to a place, an asset, a service; usability on an architectural level, from the out-doors to interior spaces.
At the same time, this new planning regime enables us to overcome barriers to accommodation, making the city more accessible to all its residents, irrespective of the primogenital condition of effective and/or potential usability, implement policies of residential living that favor urban inclusion for old people and those with disabilities, expand the scope of residential spaces through the creation of relational capital and activate the territorialization of services.
In this way, the urban narrative is transformed from mere planning space to a collective space of inclusive socialization that starts from a context of reference that celebrates differences and tackles the relational complexity through a lens of empowering residents and their specific unique characteristics when it comes to the creation of value through boosting their freedom of choice and action.
The usability of the urban space is transformed, starting from the web of ecosystem services that support and nourish the genuine force of activation within the structure of the city.
The natural principle of residence, intended as the dimension of living in all its complexity, multiplies the potential for anthropic interpretations of the use of spaces defined, case by case, as: domestic spaces, spaces of mobility and identity, spaces for public and private roles and connections, spaces of memory and belonging to different places, like vectors of the perception of man’s feeling of being rooted and secure within a built environment.
Materials and Methods: Two emblematic case studies
Solidarity housing as an active planning solution
Solidarity housing was planned and built in the city of Trieste, in Italy’s North-easter corner, by the Public Health Service to People, known as ITIS (Trieste Institute for Social Interventions); an institution with over two centuries of history in providing assistance for self-reliant old people. The project was part of a plan to reimagine the purpose of the living space so that it could meet the requirements of every person needing a proper domestic arrangement while at the same time receiving support and eventually assistance should they require treatment. It was a kind of new choice for old people who were frail and/or struggling with loneliness and for whom their existing living arrangement was unsatisfactory.
Research into an appropriate solution to these problems highlighted that Trieste’s architectural heritage was for the most part unsuited to the needs of those weaker and frailer, consisting as it did in large part of buildings and accommodation with architectural hurdles and features of the space that impeded autonomous accessibility and us-ability for people with disabilities. These were buildings without lifts, residential units with old bathrooms that lacked the minimum space necessary to ensure accessibility, furniture that was difficult to use and, above all, often unsafe for them.
The search for alternative solutions started from the most difficult aspect: the decision by people to move house, almost always involuntary and not a matter of choice. It’s necessary to put in place a support system to ensure the old person is able to come to terms with the decision to leave the home that carries tremendous significance in the context of their lives, often containing a lifetime of memories – a protector and treasure trove of meaning.
To address these crucial aspects, the flats in the solidarity housing are rented to their residents, through a contractual agreement that sets out that the flat is, in every way – including economically – the new home of its resident; this model stands in contrast to the common model of institutionalized living for its decision to distance itself from the concept of boarding costs, with its implication that the old people living in the units are “guests”.
By renting the unit, by contrast, a genuine domestic dimension is upheld, creating and restoring a new day-to-day relationship between the home and its surroundings; only a home of one’s own could accomplish that which Heidegger considered the de-fining aspect of the home: “being placed at peace, meaning: remaining within the protection of what is akin to us and that cares of everything in its essence” [6].
In addition to the rent, the old person also has the option of receiving individualized services, from hotel-type services such as cleaning, laundry, or a supply of meals upon request, calibrated to maintain a balanced diet and adapted in case of allergies, all the way to social and medical care – welfare, medical help, rehabilitation and mediation in social care with the support of a social worker. All of this comes under the so-called “service agreement”. The ITIS also guarantees additional services including entertainment, individual and group trips and recreational activities.
The project also includes a social doorman service, managed by a family that has taken on the honor on a voluntary basis. This contributes to the safety and feeling of protection among the residents, and this person also serves as a go-between for the residents and the ITIS, to provide any necessary assistance in case of emergency. Furthermore, all building and facility maintenance services are guaranteed.
The integration of the services on offer creates a feeling of home that is also suited to old people who are not self-reliant, thanks to home care that is organized, managed and coordinated by the local health care authority and supported by an informal net-work of families, neighbors or local organizations, which create new support structures and alternative tools in contrast to the common almost exclusive recourse to caregivers.
Residents’ freedom to choose their services also means expanding the ability to personalize the home environment to priorities autonomy and trigger a process of self-realization, as a result of the natural emphasis on their individual capabilities.
Residents can also choose to furnish the flat with their own furniture and bring their own items or meaningful objects, to give a true sense of home, with the necessary stratification of the experience and the memory (a sense of belonging and safety within the domestic living space, safety and security, a sense of personal fulfillment and self-realization). Thanks also in part to this, the adjustment process to the new environment is rendered less traumatic. The more solidarity and social engagement are prioritized, the more the resident is able to feel fulfilled, including as part of a dimension of safety in which they feel calm because they know there is someone looking out for their health and knowing that if anything happens, they are able to pick up the phone and someone will be with them immediately.
This type of living solution therefore offers a response that goes beyond the individual’s tangible needs and extends into their no-less-important social and relational needs. In particular, the conditions are in place to satisfy two vital needs that often overlap yet are distinct. A new way to try out the space, taking as a reference point the social behavior of its existing and/or potential users of a micro-mobility network on the urban scale.
The residential aspect outlined as part of this experience must not be limited to the four walls of their residence. It must also incorporate the opportunity to expand into the local urban sphere, which offers the opportunity for significant relational capital.
In terms of building neighborly relations, the social workers have taken steps to put in place activities to encourage familiarity and information for residents, as well as for the local neighborhood, to the extent that a kind of solidarity has formed between the building’s residents that then expanded out towards the neighborhood, partly as a result of the socialization aspect provided by the shops: a series of local shops, from the bakery to the pharmacy, that in the case of those unable to walk, even bring their products to their front door. The building puts in place the foundations for the spontaneous realization of a desired and positive perspective for the project: planting the seeds of good neighborliness, which is unfortunately declining across many areas of the city of Trieste. This in turn contributes to the regeneration of the neighborhood and the development of a local social tapestry built on solidarity [7].
The other vital aspect for developing relational capital regards the provision of communal spaces that offer meeting opportunities between residents of the building and the neighborhood, to further enrich their social environment and prevent the ghettoization of the old people by offering opportunities for interaction with other generations too.
Last but not least, it has been observed that the plans also took into consideration the unique aspects of the project’s context.
In terms of the practical details, the solidarity housing selected as a case study is located within the urban confines of the city of Trieste, in Italy’s north-east, at the up-per point of a trapezoidal block, with direct access to the road through a somewhat narrow pavement that nonetheless enables access to people on wheelchairs, in a neighborhood with services close at hand. This facilitates socialization and opportunities for interaction; the building itself is a beautiful early 20th century structure that was abandoned and then fully renovated, preserving the historic facades that are a part of Triestine building tradition and contribute to the preservation and recognition of its urban identity (Figure 2).
The interior of the building was fully renovated to priorities accessibility of the passages and living spaces, while maintaining the historic facade of the building that stands out for its plaster moulding and the use of pastel colors.
As a historic building with stairs, and not at street level, the first necessary interventions regarded the accessibility of the site. For the entrance from the street, the municipality was brought on board to repave the pavement to ensure easier access: this is a positive point worth noting as evidence of the close coordination with actors within the municipality, something which is not to be taken for granted. As the main entrance on Via Manzoni includes stairs leading into the building and connecting to the first floor from street-level, another, accessible entrance was added along the side of the building facing Via Pascoli. Here the post boxes are also located, in a position that is within reach of those in wheelchairs too; the corridor then connects the entrance directly to the lift that provides access to all floors, including the attic where the shared communal spaces can be found, along with the laundry room and accessible bathroom that is available for use by all residents as well as guests.
The building includes 18 one- and two-bedroom units. In all cases there are no architectural obstacles, all the units are fully accessible with kitchens that are suited to wheelchair users and bathrooms equipped to support the autonomy of people with disabilities. They also have access to a basement floor and a storage space beneath the stairs. These spaces are vital because they give the residents a space to store their belongings without having to let go of the memories. The living arrangements for old people are further enriched by cohabitation with different generations thanks to the adjoining but separate typology of the flats.
The work carried out to tailor the stages of life to the residents led to the construction of a specially equipped gym for people with frailties and disabilities within one of the units, with the goal of coaching and training the residents to assist their autonomy before they take up their residency, along with the use of home technology and other assistive tools for people living alone.
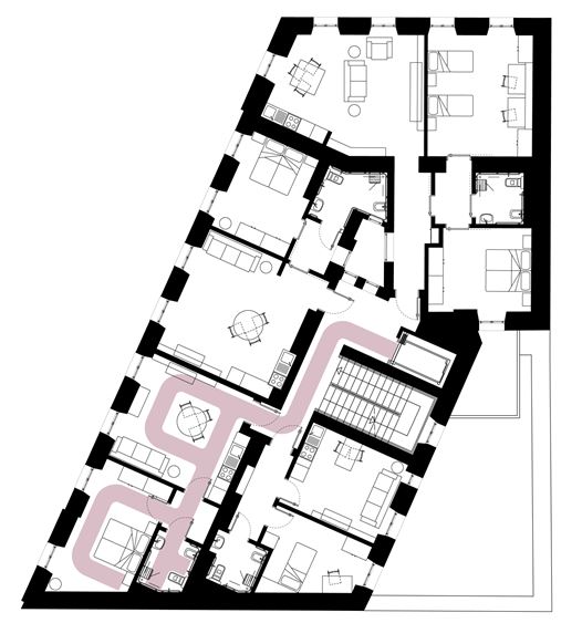
In Figure 3, the coloured pathway represents the size and turning space for a wheelchair, to demonstrate the accessibility from the lift to the entrance to the flat, and the accessible furniture and bathroom.
It is possible to check out that the usability of the domestic spaces and the bath-room is guaranteed on each floor by the flexibility of the path, which allows the interi-or to be furnished according to the individual personal needs.
The collective spaces consist of an open space in the attic that was previously un-used: this is a very comfortable space that is also open to guests, that facilitates interaction and contains a small library, seating areas, tables and a TV area where residents can watch together; on the same floor there is also a room that has been repurposed as a communal laundry room, designed as a further space for meeting, and a bathroom for people requiring assistance and accessible for people with motor disabilities, who are able to use the service thanks to the staff at ITIS.
The attic also has a beautiful balcony that looks out over the sea: another space for connection that comes with a particularly stunning view, and that will be equipped with an awning to ensure it can be fully utilized in summer too. The materials, furnishings and colors have been carefully chosen to infuse the space with a homely feel (Figure 4).
The details of the interiors give a domestic atmosphere of safety and security, especially in the areas where domestic accidents most often occur, such as the kitchen for example. Great usability is guaranteed to the common spaces, that comes out to be very wide and light up.
The interior spaces within the residence are equipped with home automation de-vices to aid the residents’ autonomy, planned in such a way as to support their individual capabilities. This autonomous living is further enhanced by distinct and personalized equipment depending on the user.
The kitchen space has been realized to be accessed and used by people with different kinds of disabilities, including those who are wheelchair-bound, as has the rest of the furniture in the units and the communal spaces which, as shown, are both within the building and outside it, enabling a visual connection with the city.
In the face of these considerations, the solidarity housing emerges as a prospect that is able to generate social activity in a neighborhood that previously had none, demonstrating the importance of supporting such processes and recognizing their strategic value on multiple levels: impacting the social picture of the neighborhood and the quality of its spaces. This is an effective and feasible strategy for urban regeneration that takes into account the urgent need for the renovation of Italy’s architectural heritage and interventions that meet the demand for active ageing. This scenario presents an opportunity as well as a challenge in terms of design on an architectural level, as it requires gathering the expectations and needs of the users and extending it to the neighborhood and broader urban space (Figure 5).
There is a clear functional relationship between design and implementation of the ecosystem network at the urban scale. Ecosystem services constitute the base layer, the connective twine, which organizes the different functions of the urban texture at the project level.
Examples include: use of local services’ improvement; social relations; meeting occasions; consideration increase; facilitated mobility; inclusion; resources, information and opportunities access and sharing etc.
The building is integrated within urban surroundings in dialogue with the neighborhood, with active collaborations with the shops and businesses in the vicinity. The importance of having services in close proximity for socializing and extending the residential sphere into the surrounding area is critical for maximizing the relationship with the neighborhood. Figure 5 shows a sketch of the solidarity housing within the broader context of the city. The services within 100m are noted, walking distance even for people with difficulties. At the same time, the central position of the house activates the ecosystems’ connections net in the terms of personal relations, human contacts, simplify mobility and direct urban services’ use (Figure 8-9).
The range taken into consideration to set out the part of the city that is within the reach of the solidarity housing and is conducive to the relationship with the neighborhood of people who live there is based on studies carried out in Scandinavia regarding the autonomous movement capabilities of older people and those with disabilities. The studies suggested 50-100 m in the most challenging cases.
The project was developed with a normal procedural process by the Public Health Service to People technical office coordinated by the technical director, architect Carlo Breda, through the adaptation of an existing building made up of 18 residential units, with surfaces varying between 38 and 90 square meters. The Solidarity housing was developed in a participatory context thanks to a pilot action coordinated by the Friuli Venezia Giulia Region as part of the European HELPS Project, active from 2012 to 2015, which had as its objective the creation of an advanced proximity welfare, to intervene through local services network on the daily lives of elderly people, and promote subsidiarity, sharing and solidarity in residents areas; At the same time, this action made it possible to recover and redevelop city areas and residential areas that had been unused for a long time. The cost of the building renovation was 2.7 million Euros, an average cost for this type of intervention, entirely financed by ITIS.
A participatory training process was developed, financed, as said before, by a regional project within the scope of European Community planning, interacting with working groups divided into three typologies: potential users, reference associations present in the urban context and the social and health workers, collaborating with the health districts and with social cooperatives. Thus, a complete picture of concrete needs, potential space usages, action criteria and economic parameters was built up.
The solidarity housing is certainly a replicable model: it also has been already replicated in the city of Pordenone and similar experiments are being developed always in Friuli Venezia Giulia to face fragile and outcast people inclusion and relational problems.
Urban scenes and accessibility for a Central European “Collage City”
The case study presented in this section has an added value precisely for the city and the place in which it is inserted, and in particular the city of Trieste and the particular structure of the urban texture (Figure 9) of the consolidated historic center. Trieste is a peculiar city in terms of urban structure, the relationship between "building typology" and "urban morphology," and the articulation and composition of public space: it's a blend of architectural fabrics that stand side by side in a paratactic manner, forming a sort of grand "urban collage."
It has already been partially described in the previous paragraph, but it should be emphasized that the pilot project of the "solidarity housing" is part of a context that is not only densely populated, but also characterized by an important ethnic and social mix. This is a condition that multiplies the effect of integration and morphological and also social mending of the intervention, within the concept of multiculturalism.
Trieste, as Paolo Portoghesi wrote at the end of the 1990s, is a city characterized by very different settlement fabrics, corresponding to different eras and phases of building and evolution, which are juxtaposed according to the criterion that R. Venturi would define as "and-and", build a sort of varied, articulated and very heterogeneous “Collage City” (Figure 6) [8,9].
Specifically, Figure 6 visualizes our concept of 'Collage City interpretation', where public spaces and settlement systems reflect Trieste's rich historical tapestry. This diagram supports our discussions on accessibility planning and the multi-dimensionality of urban space.
This reinterpretation of the city, which draws on C. Rowe's "Collage City" model, is not only an analytical and theoretical exercise but also becomes a design tool. Within this framework of "urban scenes," we can rethink all public space, which is the true connective of the city, in a different way (Figure 8-9). The emerging structure is a sequence of "urban rooms," spaces all connected and continuous, and also characterized by strong recognizability as "urban scenes." The literature unanimously agrees on the power of perception as a tool for psychosensory improvement. Therefore, if this psychosensory dimension starts from the urban dimension, as a system connecting domes-tic spaces and as the primary interface between the domestic and the collective, be-tween the public and the private, then the possibilities for improving individual well-being begin from the realm of collectivity. Although with different tools and applications, between public and private, this experiment has allowed us to understand the scope of work, the goal of urban ecosystem services. This is no small feat. We cannot confine ourselves to merely social housing, nor even to solidarity housing if the public space of the city is not consistent with accessibility and comfort criteria. Hence, the "theory of the Collage City" comes to our aid to rethink everything systematically, and thus return to Rayner Banhn's [22] ever relevant idea of the city as a system of ecologies.
The outcome of this experiment that we narrate in this essay shows that this approach, from the building to the city and vice versa, is a powerful design strategy (Figure 10) that we can apply not only in Trieste but also in many other urban contexts, and particularly that we can apply it in the historical centers of European medium-small Cities. The combined outcomes of the two case studies are therefore generalizable, which in scientific terms means adopting a modeling approach.
This heterogeneity is assembled and made coherent by the public space, in fact both physical and functional urban relationships of connection, coherence and continuity are developed precisely by the shape and structure of the open space. This thesis is particularly valid for the consolidated historic centre of Trieste. In fact, the different settlement fabrics, which form the “six cities", today are the meaning of the historic center (Borgo Teresiano, Borgo Giuseppino, Borgo Franceschino, Città Murata, Rive and Porto Vecchio, Foro Ulpiano). These "six cities" are connected with a particular system of public open spaces: thirteen Urban Scenes (Figure 7a; 7b), which are connected and integrated with each other to form an important urban frame of public space. In-deed, these are public open spaces with a high architectural value due to their shape and quality.
This system of thirteen scenes (Figure 7a) is a set of urban voids set on one, two or three perspective axes and are defined in the margins, perimeter and height by the building curtains of the blocks, and with these they establish a relationship by size or shape. In some cases, the dimensions with which they are articulated are proportionally connected to those of length and height of the buildings and blocks (e.g. in the Borgo Teresiano), in other cases they are built according to the logic of "figure and back-ground" and sequence plans (e.g. Via Carducci, Largo Barriera Vecchia and Piazza Garibaldi) and in other cases still on the urban perspective (for example the Ponterosso basin, or the axis of Via Battisti). This system of voids organized by Urban Scenes still represents the urban milieu of the historic center of Trieste today, which we can read as a sort of Central European Collage City [9] (Figure 6).
Within this Urban Collage, the case study suggests a specific theme of regeneration also as a morphological mending while operating within the strategies and models of architectural redevelopment of the single building. This happens because it is located in the historic center, demonstrating how by designing directly on the architectural object interpreted as an urban machine, it is possible to indirectly obtain beneficial effects on the entire building fabric and specifically on the public space. The intervention is located on one of the thirteen urban scenes, in particular urban scene n.5, and is close to important central points (Piazza Garibaldi, Largo Barriera), very consolidated and equipped from the point of view of facilities, services, as well as being located on two of the main flow’s axes (via Carducci, via D'Annunzio).
This strategy, already effective in itself, if it were applied to a larger scale, involving all thirteen Urban Scenes, could multiply the regenerative effect in a virtuous way thanks to a system that already works by its own internal logic, the morphology of ur-ban voids, thanks to the projects in progress (Figure 6) and the policies for the management of pedestrian areas and public transport. This is a mix that underlies that urban paradigm that is much discussed today, which is the "city of 15 minutes".
The social condominium model will be able to grow and improve a lot if it is integrated with green areas both as an urban strategy and as a design concept for the architectural composition, with the potential to develop both the landscape design of the public green space, that environmental issues and therefore the contribution to urban ecological networks [10].
We also understood that the internal common spaces and the points of connection with the public space play a central role in the organization of the social condominium. We can therefore reconsider them as themes for an exportable new urban model and perhaps even make them become further strategies of interest:
a. the recovery and redevelopment of attics as new shared spaces and places for a new possible sociality. Also given the architectural and panoramic characterization of these potential "squares and gardens on the roofs", offering unprecedented perspectives on the city through the recovery of the existing heritage by associating it with the "social condominium" would mean "inventing", from the existing one, new particularly attractive spaces. This conceivable thematic extension from the case study could take the form of a "map of roofs", a document (plan or programme) which encourages the widest possible reuse of roofs and attics (a process already partially started by the famous "attic variant" of Luciano Semerani), and perhaps also with possible public uses of the roofs, as already experienced in many European cities (Vienna, Athens, Paris);
b. the redesign or rethinking of the ground connections, the so-called building bases, which in addition to having to resolve the central issue, i.e. guarantee maximum inclusiveness for physical accessibility, must favor and encourage the permeability of flows, the internal-external exchange, the interrelation between public space, semi-public space and private space as the basis of the processes and actions of social regeneration. This strategy and operational theme should materialize by promoting the integrated design of the urban public space, which we mentioned above (the urban scenes), and of the internal and domestic space (all the base-spaces) of the "social condominium".
Last but not least, from this type of intervention, we can learn a new possible strategy suitable for limiting and governing the gentrification phenomena and at the same time becoming a concrete, attractive and sustainable alternative to the now classic social housing, which generally finds easier application in peripheral areas of cities.
Conclusions
The multidimensional structure of the urban space when placed alongside the implementation of accessible planning allows us to see the added impact value of creating an interactive system of services to the city, with increased public value and the reactivation of flows and relationships around the built environment. The directions of these regarding the many and varied uses contribute to a perceptible direct and indirect improvement in the quality of life for the resident population in terms of stability, inclusion and resilience [11].
Our analysis of the 'Collage City interpretation' of Trieste, as depicted in Figure 6, illustrates how enhanced accessibility in urban planning can result with the introduction of micro-plan actions aimed to re-connect and ease the urban network with accessible and sustainable use for everyone.
From it emerges a new structure to the city, almost a new urbanity, that uses mod-ern materials and planning tools to open it up to the regeneration of its connective texture (Figure 9), creating a proactive city, one in which the dynamic role of cultural and environmental ecosystem services actively contributes to improvements in quality of life of the citizens, as well as emerging modern living spaces and complex sites [12].
The representation of the city as perceived and lived becomes a dynamic whole of reticular capillaries interventions that follow, structure and shape the diversification of its anthropic uses over time and within the space, in the context of the evolution of the functional relationships between its constituent parts while at the same time combining the evolving demand for services on the part of the users.
Vital to this vision, the effort to introduce pathways of analysis and planning stands out prominently. This is part of a modern, open and attentive process that is able to identify the necessary aids and devices to facilitate interventions that restore and interpret participation and use of a familiar and versatile residence in constant search for the right balance between demand for space and the culture and apparatus of the environment. Particular attention here must be given to maximizing the quality of interactions with the space and surroundings to different extents [13].
This is the city planning of resilience, soliciting a significant regeneration of the contents of the projects and plans at every level, through the lens of employing new methods for acquiring knowledge that are able to tackle existing challenges and pro-vide appropriate support for evaluating potential use, non-use and enhancement of the built environment. All of this is without neglecting to factor in the quantity and quality of the benefits received by the direct and indirect beneficiaries, which can be explained in terms of an increase in collective well-being and contribution of the eco-system to the balance of the urban environment [14].
There is an emerging urgency in rebuilding the structural and functional relation-ship between the city and its inhabitants, through the intelligent use of signs and spaces associated with the urban system, using the discontinuity of its constituent parts to its advantage.
A form of living supported by activating a network of internal and external ser-vices, a network of relationships that sustains and integrates the individual’s domestic life with the external space of the city by facilitating mobility around the neighborhood, social contacts and access to services through proximity, autonomy and security.
The case study raised herein offers a clear response to the question posed at the top: old people not only provide fundamental value in existential and ontological terms that the utilitarian culture cannot match, they are also a resource that de facto acts as a catalyst for the economic conditions to enable sustainable regeneration as a rediscovery of the city (new uses and public roles). This is equally true in the context of its culture, history and unique urban characteristics, that traverse multiple generations and is favorable to all of them.
Accessibility as knowledge that creates/revives spaces of public and private inter-action; enriching and expanding the space; accessibility as an active and versatile process, that elevates the quality of planning beyond the mere application of regulations, a paradigm shift with accessibility at the heart of a new relationship of positive interaction between people and their environment within the delicate representation of the urban texture [17]. The contribution offered by the use of public space as a morpho-functional structuring tool of the city space also enriches the plan opportunities towards an enhancement of the same in an eco-systemic concept that aims to an environmental urban quality of life increase.
Another key question regarding the capacity of public spaces to promote well-being, health, and happiness, as the platform for an essential socio-spatial network, when it comes to urban resilience, connected with well-being, health and happiness as an environmental experience [15].
Solidarity housing applied in Trieste, as a leading project offers a replicable model: the architectural conditions lie in identifying buildings that are conducive to accessibility, including in the context of their urban surroundings, to ensure the maximum autonomy for their residents, and that contain certain characteristics that enable a mix of residential and communal spaces.
Notice that it is the first time that research and practice try to match social housing problems with Universal Design targets and social inclusion needs of fragile inhabitants in urban areas. Feedbacks from this meaningful test are ongoing. It should also be emphasized that this is the first time that the urban model of the "Collage city" has been associated as a framework for "Universal Design" and accessibility projects (solidarity housing). This aspect is significant because, in the discipline of urban design and city architecture design, it represents a frontier of research. Rethinking the city as a system of urban scenes (Figure 10) means extending the domestic dimension of "solidarity housing" to the scale of the city in a continuous and connected system between public space and private space. And it is precisely here that one of the most important ecosystem services operates, namely in the "threshold space."
The possible developments of this line of research should concern the in-depth study of the conditions for the diffusion and social and economic sustainability of these design solutions oriented towards the valorization of persons in all their capabilities and expectations of effective and efficient use of the city space, with particular attention to interpersonal relationships and recreational activities to better evaluate and develop the contribution of social ecosystem services to present wellness and all over people quality of life.
This essay describes the results of architectural and urban projects. As is characteristic of this discipline, the project is always an experiment, not always entirely scientific or linear. It is known where one starts, but not where one ends up because it can-not have a deductive nature. Instead, it is always a circular path between analysis and design, with possible variations due to specific site constraints, environmental conditions, or particular functional program requirements. These interferences deviate the path of investigation and model development, causing the scientific method to take on seemingly random and subjective characteristics, which in the discipline of design fall within what was defined as the "method by analogy," as used, for example, by [19].
The case of ITIS solidarity housing can become a model, a general strategy for city plan and regeneration in all those urban contexts, in which there are dense historic centers with underutilized, abandoned and disused housing assets with specific destination and function use requests of urban spaces.
It presents itself as an example of low-cost “good design practice”, which systematizes the existing and promotes social relations and the active participation of resident citizens as an example of useful and positive “gentrification”.
The case of the Collage City interpretation also moves in the same direction, which provides a different way of addressing the theme of the redevelopment of the stratified historic city with the presence of heterogeneous and mixed urban textures with the aim of their reconnection and neo-functionalization.
Acknowledgments
This paper is the result of the full collaboration of all the authors. In detail, Sonia Prestamburgo wrote Introduction, Conclusions and Theorical background: ecosystem services and “universal design” role in urban space plan; Carlo Zanin was responsible for Materials and Methods. Two emblematic case studies: Solidarity housing as an active planning solution; Adriano Venudo handled Materials and Methods. Two emblematic case studies: Urban scenes and accessibility for a Central European “Collage City”.
This research did not receive any specific grant from funding agencies in the public, commercial, or not-for-profit sectors.
No generative AI and AI-assisted technologies have been used for this paper.
Conflicts of Interest
The authors declare no conflict of interest.
References
- Costanza R, d'Arge R, de Groot R, Farber S, Grasso M, Hannon B, et al. (1997) The value of the world's ecosystem services and natural capital, Nature, 15: 253-60.
- Wheatley P (1981) La City as symbol. Essays on the arrangement and perception of urban space in the traditional world, Morcelliana, Brescia.
- Fabbri P (2010) Landscape and networks. Ecology of function and perception, Franco Angeli Edizioni, Milan.
- Bolund P, Hunhammar S (1999) Ecosystem services in urban areas, Ecological Economics, 29: 293-301.
- Biggs R, Schlüter M, Schoon ML (2015) Principles for Building Resilience: Sustaining Ecosystem Services in Social-Ecological Systems. University Press, Cambridge.
- Heidegger M. (1976) Building, living, thinking, in: “Essays and Discourses”, G. Vattimo (ed.), Edizioni Mursia, Milan, p. 99.
- Bronzini M (2014) New forms of living. Social housing in Italy, Carocci Editore, Rome. ISBN 978-88-430-7346-7.
- Venturi R (1966) Complexity and contradiction in architecture, The Museum of Modern Art, New York.
- Rowe C, Koetter F (1981) Collage City, Il Saggiatore, Milano, (in Italian).
- Del Fabbro Machado L, Venudo A, Altobelli A, Bertuzzi J, Zampieri F, Gatti A (2022) Ecopolitana: A Plan of Cities, Territory, Landscape, and Ecology, Sustainability, 14: 4044.
- Beretić N, Talu V (2020) Social Housing as an Experimental Approach to the Sustainable Regeneration of Historic City Centers: An Ongoing Study of Sassari City, Italy, Sustainability, 12: 4579.
- Costanza R, de Groot R, Sutton P, van der Ploeg S, Anderson SJ, Kubiszewski I, Farber S, Turner R Kerry (2014) Changes in the global value of ecosystem services, Global Environmental Change, 26: 152-8.
- Zhao J, Peng Z, Liu L, Yu Y, Shang Z (2021) Public Space Layout Optimization in Affordable Housing Based on Social Network Analysis, Land, 10: 955.
- Woodruff SC, BenDor TK (2016) Ecosystem services in urban planning: comparative paradigms and guidelines for high quality plans. Landsc. Urban Plan. 152: 90-100.
- Mehaffy MW (2021) Health and Happiness in the New Urban Agenda: The Central Role of Public Space, Sustainability, 13: 5891.
- Ecosystems and Human Well-Being: Scenarios, ISBN: 9781559633901.
- Iwarsson S, Stahl A (2003) Accessibility, usability and universal design. Positioning and definition of concepts describing person-environment relationships. Disability and Rehabilitation, 25: 57-66.
- Ecosystem Assessment (2005) Ecosystems and Human Well-being: Synthesis for Decision Makers. Washington, DC: Island Press.
- Rossi A (1966) The architecture of the city, Marsilio Editore, Vicenza.
- Venudo A, D'Oria M (2017) Masterplan for the Historic Center of the of the Municipality of Trieste 2016-17, Final Report, Trieste.
- World Health Organization (2007) Global age-friendly cities: a guide, World Health Organization Eds.
- Banham R (1983) Los Angeles: The Architecture of four Ecologies, Einaudi, Torino.
- Alberti M (2005) The effects of urban patterns on ecosystem function. Int. Reg. Sci. Rev. 28: 168-92.
- Alexander C et al. (1977) A Pattern Language: Towns, Buildings, Construction, (Center for Environmental Structure Series), Oxford University Press, New York, ISBN: 13:978- 0-19-501919-3.
- Bergamo M, Zanin C (2006) The three ages of life. The architecture of domiciliary, Il Poligrafo, Padua. ISBN 88-7115-473-8.
- Ecosystems and Human Well-Being: Current State and Trends, ISBN: 9781559632270.
- International Classification of Functioning, Disability and Health (ICF), WHO, (2001), available from https://www.who .int/standards/classifications/internationalclassificationoffunctioningdisabiliy-and-health.
- Lynch K (1990) Designing the city. The quality of urban form, EtasLibri, Milan.
- UN Convention on the Rights of Persons with Disabilities (UNCRPD), Final Report, December 2006.
Article Information
Research Article
Received Date: November 20, 2024
Accepted Date: December 20, 2024
Published Date: December 23, 2024
Use and Function Reallocation of Living Space in the “Design for All” Approach. The Contribution of Ecosystem Services at the Urban Scale
Volume 4 | Issue 1
Citation
Sonia Prestamburgo, Adriano Venudo, Carlo Zanin (2024) Use and Function Reallocation of Living Space in the “Design for All” Approach. The Contribution of Ecosystem Services at the Urban Scale. Environ Sci Energy. Environ Sci Energy 4: 1-19
Copyright
©2024 Sonia Prestamburgo. This is an open-access article distributed under the terms of the Creative Commons Attribution License, which permits unrestricted use, distribution, and reproduction in any medium, provided the original author and source are credited.
doi: jese.2024.4.101












